Содержание:
Что входит в дизайн-проект квартиры?
Хороший дизайн-проект — это набор документов, среди которых есть и визуальная часть, и подробные технические чертежи. Вот основные разделы:
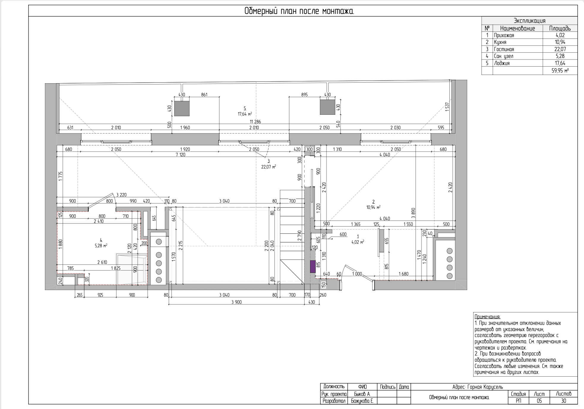
1. Обмерный план. Точный план помещения с фактическими размерами стен, проёмов, окон, высоты потолков и пр. Он выполняется после выезда замерщика на объект.
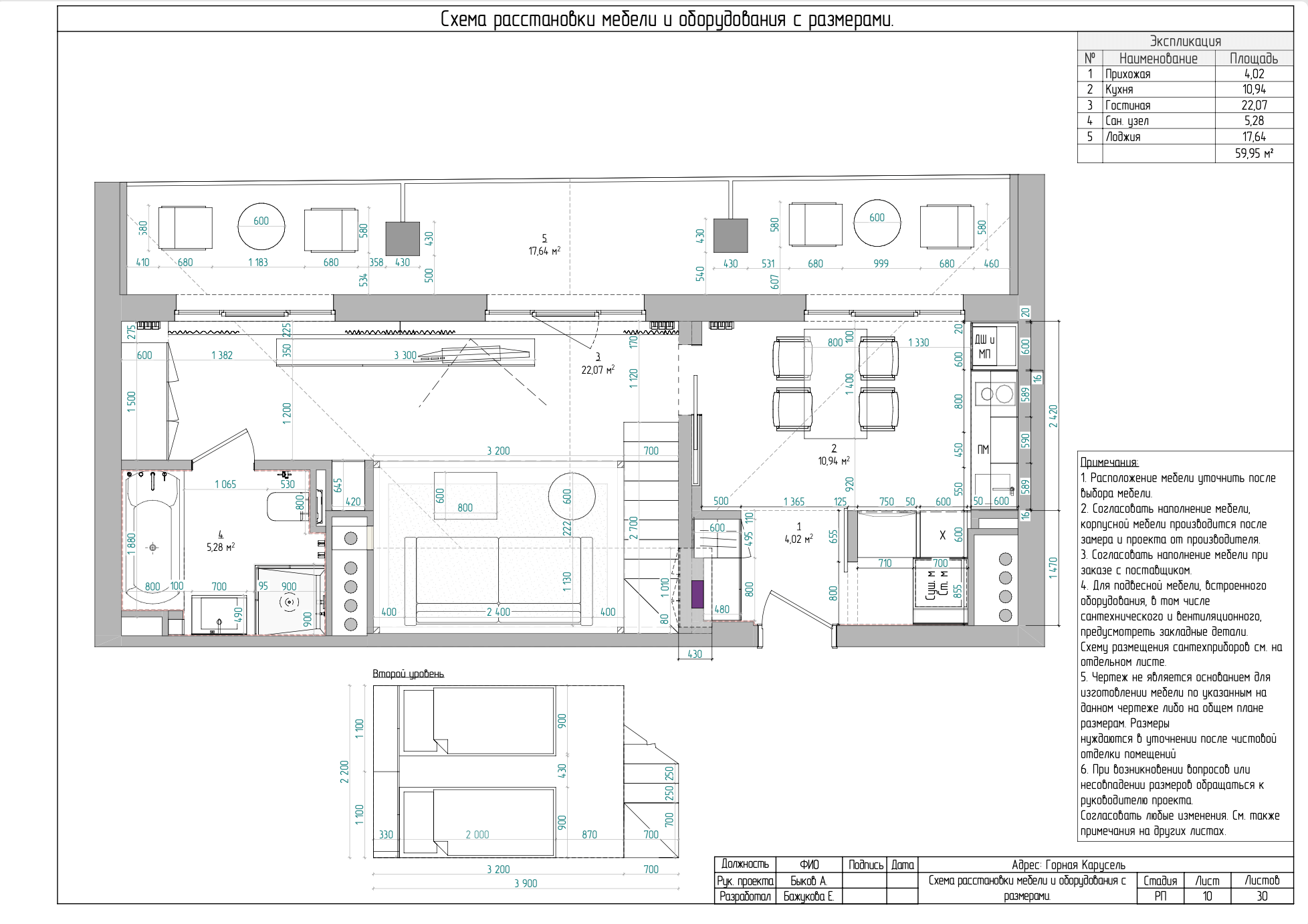
2. Планировочные решения. Как правило, предлагается несколько вариантов расстановки мебели и зонирования пространства. Выбор финальной планировки, учитывающей эргономику, пожелания и образ жизни заказчика, будет осуществляться в процессе доработок проекта.
3. План демонтажа и монтажа. Нужно определить, что сносится, а что строится заново (если есть перепланировка). Это важный документ для работы строителей и согласования перепланировки.
4. План освещения. Сюда сходит схема размещения светильников всех типов: потолочные, настенные, встраиваемые, декоративные. Важно, чтобы были учтены разные сценарии освещения: общее, рабочее, акцентное.
5. План электрики и слаботочки. Расположение розеток, выключателей, выводов под ТВ, интернет, домофон и пр., а также сценарии управления светом, розетки для встроенной техники. Все это нужно заранее продумать, чтобы жизнь в квартире была комфортной.
6. План водоснабжения и канализации. На плане отмечается прокладка труб, точек подключения для кухни и санузлов. А также важно заранее провести учет высоты мебели, бытовой техники и техники (например, посудомоек, стиральных машин).
7. План отопления, кондиционирования и вентиляции. Размещение радиаторов, тёплого пола, кондиционеров, вентиляторов, вытяжек.
8. Ведомость отделки помещения. В ней должна быть информация о том, какие материалы и где они используются: покраска, плитка, обои, декоративные покрытия. Цветовые схемы и коды материалов необходимы, чтобы затем правильно провести комплектацию проекта.
9. Визуализации (3D или коллажи). Так называется отрисовка интерьера в фотореалистичном формате. Она позволяет «увидеть» будущую квартиру до начала ремонта.
10. Спецификации и подбор материалов. Это подробные списки с артикулами: плитка, сантехника, свет, мебель. Часто в списках есть ссылки на магазины и ориентировочная стоимость.
Это далеко не все: сюда же мы включим схемы раскладкеи плитки, отделки стен, размещения кондиционеров, «умного дома», открывания дверей и другие чертежи, которые включаются в проект в зависимости от целей ремонта и необходимости в той или иной степени подробности.
В зависимости от проекта может меняться его наполнение. Где-то мы добавляем те или иные пункты, а где-то — исключаем.
Этапы работы над дизайн-проектом
Работа над проектом делится на несколько последовательных этапов:
1. Знакомство и техническое задание
Обсуждаются пожелания, стиль, бюджет, привычки + определяются приоритеты и ограничения. Это тот самый этап, на котором дизайнер может задать вам вопросы, которые кажутся немного странными: он обязательно уточнит место работы всех членов семьи (тех, кто работает), их хобби, примерные сценарии вечера, какие-то идейные соображения или даже аллергии.
2. Обмеры и анализ планировки
Происходит выезд на объект + разработка 2−3 вариантов планировок.
3. Разработка концепции
Коллажи, референсы, подбор материалов, цветовая палитра.
4. 3D-визуализация
Визуальные изображения будущего интерьера с мебелью, светом, отделкой.
5. Рабочая документация
Все чертежи, планы, схемы и спецификации.
6. Согласование и сдача проекта
Обсуждение, финальные правки + передача полного альбома в бумажном и/или электронном виде.
Многие дизайнеры не завершают свою работу на этом этапе и берут авторский надзор над проектом — то есть занимаются закупкой финишных материалов, отвечают на все вопросы строителей по чертежам, вносят правки и следят за прогрессом работ.
Чем отличается дизайн-проект квартиры и дома?
Обсудим разницу между дизайн-проектом для квартиры и для загородного дома:
Квартира:
— Ограниченное пространство и фиксированная геометрия.
— Нет технических узлов вроде котельной, септика, скважины и вентиляционных шахт.
— Подключение к городским сетям (меньше инженерных нюансов).
— Чаще всего проект делается сразу «под ключ».
— Нет технических узлов вроде котельной, септика, скважины и вентиляционных шахт.
— Подключение к городским сетям (меньше инженерных нюансов).
— Чаще всего проект делается сразу «под ключ».
Частный дом:
— Намного больше инженерных и конструктивных решений.
— Нужно учитывать теплоизоляцию, отопление, водоснабжение, автономность.
— Часто требуется архитектурный раздел: фасады, кровля, фундамент.
— Проект делается совместно с архитектором и инженерами.
— Нужно учитывать теплоизоляцию, отопление, водоснабжение, автономность.
— Часто требуется архитектурный раздел: фасады, кровля, фундамент.
— Проект делается совместно с архитектором и инженерами.
Итого, дизайн-проект дома — сложнее, дольше и дороже, чем квартиры. Но и пространство для креатива и планирования — шире.
А нужен ли вообще дизайн-проект?
Некоторым кажется, что без дизайн-проекта работы по ремонту начнутся быстрее и пройдут «без заморочек». Это мнение распространено среди тех, кто считает, что ему не нужны никакие дизайнерские штучки.
Но нюансы заключается в том, что ремонт без дизайн-проекта зачастую обходится дороже и получается мало подходящим для жизни. Например, строители могут неправильно разместить розетки, сделать заземление или рассчитать угол открытия шкафчика.
Дизайн-проект помогает минимизировать ошибки и переделки, оценить конечный результат до начала работ, уложиться в бюджет и сроки, и избежать постоянных «а куда эту розетку?» на стройке.
Без проекта ремонт становится дорогим квестом «угадай, что будет». Строители начинают додумывать за вас, закупки идут спонтанно, мебель не встаёт по размеру, и постоянно всплывают новые траты.
Сколько времени занимает создание дизайн-проекта?
Сроки зависят от:
- площади помещения,
- сложности проекта (например, стиль рококо сложнее, чем классика),
- количества согласований.
Средний ориентир:
— Квартира 50−70 м² (от 4 до 6 недель)
— Дом 120−200 м² (от 2 до 3 месяцев)
— Дом 120−200 м² (от 2 до 3 месяцев)
Это лишь примерные сроки. По нашему опыту, мы можем сказать, что у хорошего дизайнера, в среднем, уходит около 3-х месяцев на создание проекта. Эти сроки зависят не только от его загрузки, но и от вовлеченности заказчика: с какой скоростью вы готовы давать правки и принимать решения.
В нашем команде есть профессиональные дизайнеры, готовые уложиться в ваши сроки и воплотить в жизнь самые сложные идеи. Переходите в калькулятор ремонта, чтобы рассчитать примерную стоимость.
Можно ли вносить изменения в проект во время ремонта?
Да, можно. На практике почти в каждом проекте появляются уточнения и корректировки. Но важно понимать, что любое изменение может потянуть за собой переделку чертежей, материалов, сроков. Если нет проекта вообще — менять нечего. А если он есть — можно всё документально перепроверить и посчитать последствия! Все же второй вариант предпочтительнее, правда?
В 101 GROUP мы всегда сопровождаем проект на этапе реализации: если клиенту хочется поменять материал, передвинуть розетку или внести новую мебель — мы оцениваем, как это повлияет на остальное и вносим правки.
Дизайн-проект — это не «доп-услуга», а основа грамотного ремонта. Он нужен не ради картинки, а ради экономии нервов, времени и бюджета. Проект — это язык, на котором говорят дизайнер, клиент и строитель. Без него легко запутаться, ошибиться и потратить вдвое больше.
Если вы задумываетесь о ремонте — начинайте с проекта. Мы готовы помочь на любом этапе: от планировки до визуализаций, от материалов до авторского надзора.